4-Bedroom, 2870 Sq Ft Farmhouse Plan with Bonus Room

Front elevation of Farmhouse home (ThePlanCollection: House Plan #165-1152)

Images/Plans copyrighted by designer. Photos may reflect homeowner modifications.

About House Plan #165-1152

Sq Ft
2870
Sq Ft
Bedrooms
4
Bedrooms
Bathroom
2
Baths
Half Baths
1
Half Baths
Bedrooms
2
Cars
Bedrooms
2
Stories
Bedrooms
35' 0'
Width
Bedrooms
75
Depth
Starting at$2050.00What's included
STEP 1Bedrooms
STEP 2Bedrooms
STEP 3Bedrooms

Subtotal:$0
Plan Collection

How much will it cost to build?

Estimate your costs based on your location and materials.

Free Cost Instant Estimator

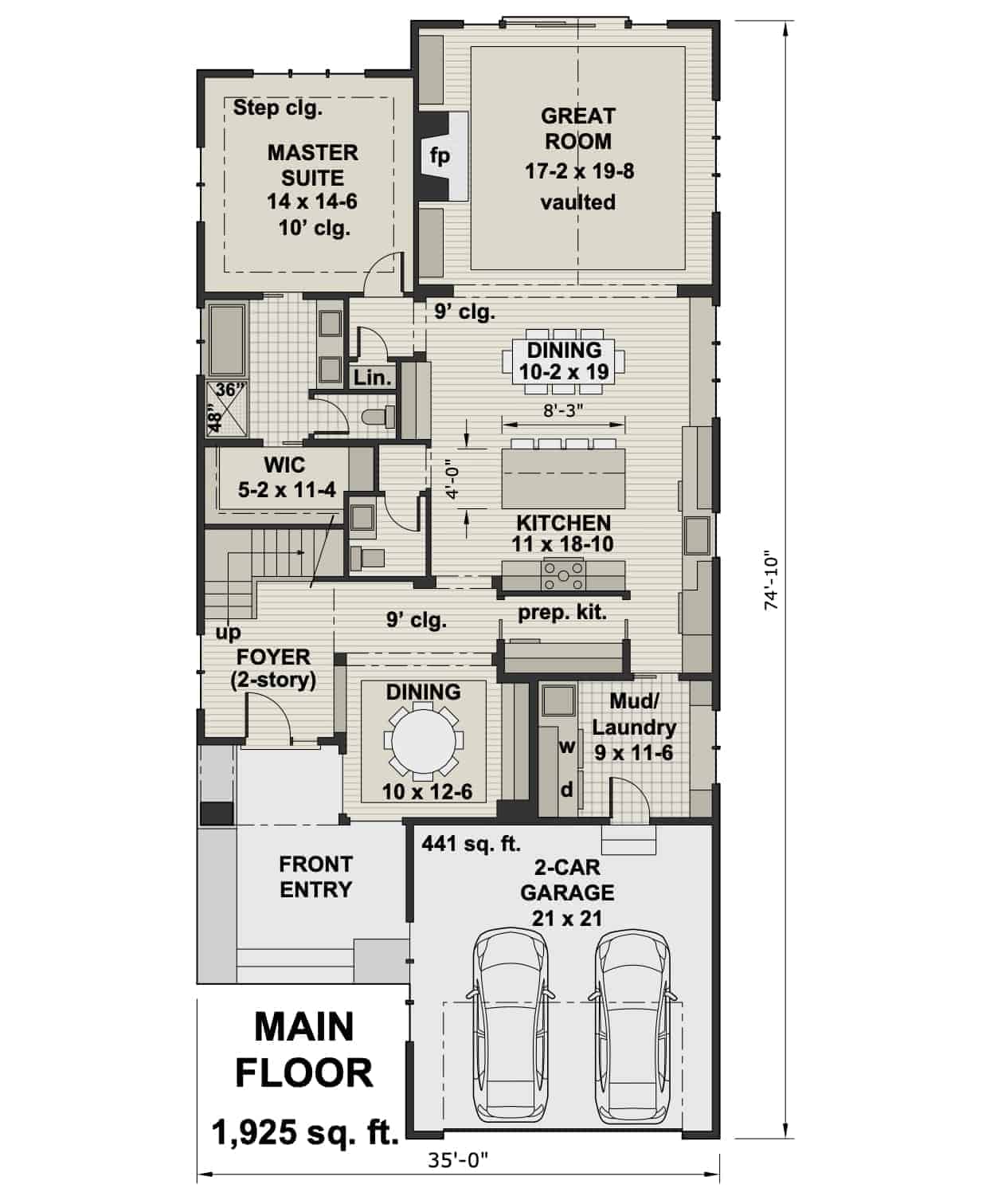
Floor Plans

Main Level
Main Level
Upper Level
Upper Level
Plan Collection

Can I modify this plan?

Yes! This plan can be customized—contact us for a free quote.

Additional Notes from Designer

PLEASE NOTE: Materials Lists are based on the STOCK plan ONLY without modifications! Custom materials lists are available if you modify a plan. Please ask for a quote.

House Plan Description

A home you have been waiting to see is this fabulous Farmhouse style home that boasts an open floor plan.  Its subtle and style-appropriate use of materials for the roof and exterior walls give it natural curb appeal among its surroundings. The remarkable 2-story floor plan has 2870 square feet of fully conditioned living space.  You'll love these great amenities:

• Fireplace in the Great Room
• Spacious laundry room
• Spacious walk-in closets
• Mudroom
• Loft

Home Details

Summary
Plan #:165-1152
Starting at:$2050.00
Floors:2
Bedrooms:4
Full Baths:2
Half Baths:1
Garage:
Square Footage
Heated Area:2870 Sq. Ft.
First Floor:1925 Sq. Ft.
Second Floor:945 Sq. Ft.
Unheated Area:
Bonus Room:398 Sq. Ft.
Garage:441 Sq. Ft.
Dimensions
Architectural Styles
Exterior Wall Material
Vinyl SidingRock/StoneWood Siding
Roofing Type
Gable/Dormer
Roofing Material
Asphalt Shingles
Roof Pitch
9/12
Ceiling Height
9 Foot Ceiling
Special Feature
FireplaceDining RoomMud RoomBonus RoomFamily RoomMain Level LaundryLoftSplit BathroomStorageOpen Floor Plan
Garage Type
Attached GarageFront Entry
Fireplaces
One Fireplace
Exterior Wall Framing
2x6
Building Lot Type
Narrow Lot Design
Kitchen Features
Kitchen IslandNook/Breakfast AreaWalk-in PantryPeninsula/Eating BarEat-In Kitchen
Porches and Exterior Features
Covered Front PorchCovered Rear Porch
Master Suite Features
Main Floor MasterMaster BathroomWalk In ClosetSplit Master Bedroom

What’s Included

Most plan sets include the following:

icon text-secondary-400 includedFoundation plan

icon text-secondary-400 includedFloor plan(s)

icon text-secondary-400 includedExterior elevations

icon text-secondary-400 includedBuilding cross sections

icon text-secondary-400 includedRoof plan

icon text-secondary-400 includedNotes & details

What’s Not Included

These items are  NOT included:

icon text-secondary-400 includedArchitectural or Engineering Stamp - handled locally if required.

icon text-secondary-400 includedSite Plan - handled locally when required.

icon text-secondary-400 includedMechanical Drawings (location of heating and air equipment and ductwork) - your subcontractors handle this.

icon text-secondary-400 includedPlumbing Drawings (drawings showing the actual plumbing pipe sizes and locations) - your subcontractors handle this.

icon text-secondary-400 includedEnergy calculations - handled locally when required.

Related House Plans

Plan Collection
Plan Collection
Plan Collection
Plan#169-1035
Starting at$720
2482
Sq Ft
2
Story
4
Bed
2.5
Bath
3
Car
Plan Collection
Plan Collection
Plan Collection
Plan#163-1001
Starting at$1230
2757
Sq Ft
2
Story
4
Bed
2.5
Bath
2
Car
Plan Collection
Plan Collection
Plan Collection
Plan#187-1001
Starting at$1450
3296
Sq Ft
2
Story
4
Bed
2.5
Bath
2
Car
View All

Other Plans By This Designer

Plan Collection
Plan Collection
Plan Collection
Plan#165-1077
Starting at$2450
6690
Sq Ft
1
Story
5
Bed
5
Bath
4
Car
Plan Collection
Plan Collection
Plan Collection
Plan#165-1186
Starting at$2050
2889
Sq Ft
2
Story
4
Bed
3.5
Bath
2
Car
Plan Collection
Plan Collection
Plan Collection
Plan#165-1168
Starting at$2050
2456
Sq Ft
2
Story
3
Bed
2.5
Bath
2
Car