3-Bedroom, 2927 Sq Ft Ranch Plan with Kitchen Island

Ranch home (ThePlanCollection: Plan #134-1231)

Images/Plans copyrighted by designer. Photos may reflect homeowner modifications.

About House Plan #134-1231

Sq Ft
2927
Sq Ft
Bedrooms
3
Bedrooms
Bathroom
2
Baths
Half Baths
1
Half Baths
Bedrooms
2
Cars
Bedrooms
1
Stories
Bedrooms
58' 0'
Width
Bedrooms
95
Depth
Starting at$7024.80What's included
STEP 1Bedrooms
STEP 2Bedrooms
STEP 3Bedrooms

Subtotal:$0
Plan Collection

How much will it cost to build?

Estimate your costs based on your location and materials.

Free Cost Instant Estimator

Floor Plans

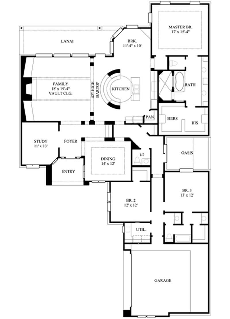
FLOOR PLAN
FLOOR PLAN
Plan Collection

Can I modify this plan?

Yes! This plan can be customized—contact us for a free quote.

House Plan Description

This beautiful ranch style home has 2,927 square feet of living space. The two-story floor plan includes 3 bedrooms and 2.5 bathrooms.

Home Details

Summary
Plan #:134-1231
Starting at:$7024.80
Floors:1
Bedrooms:3
Full Baths:2
Half Baths:1
Garage:
Square Footage
Heated Area:2927 Sq. Ft.
First Floor:2927 Sq. Ft.
Unheated Area:
Dimensions
Architectural Styles
Ceiling Height
10 Foot Ceiling
Garage Type
Attached Garage
Exterior Wall Framing
2x4

What’s Included

Most plan sets include the following:

icon text-secondary-400 included1/4 scale elevations

icon text-secondary-400 includedFully dimensioned floor plans

icon text-secondary-400 includedFoundation footprint

icon text-secondary-400 includedRoof plan and section details

What’s Not Included

These items are  NOT included:

icon text-secondary-400 includedArchitectural or Engineering Stamp - handled locally if required.

icon text-secondary-400 includedSite Plan - handled locally when required.

icon text-secondary-400 includedMechanical Drawings (location of heating and air equipment and ductwork) - your subcontractors handle this.

icon text-secondary-400 includedPlumbing Drawings (drawings showing the actual plumbing pipe sizes and locations) - your subcontractors handle this.

icon text-secondary-400 includedEnergy calculations - handled locally when required.

Related House Plans

Plan Collection
Plan Collection
Plan Collection
Plan#142-1205
Starting at$1345
2201
Sq Ft
1
Story
3
Bed
2.5
Bath
2
Car
Plan Collection
Plan Collection
Plan Collection
Plan#153-2019
Starting at$1350
2252
Sq Ft
1
Story
3
Bed
2.5
Bath
3
Car
Plan Collection
Plan Collection
Plan Collection
Plan#142-1186
Starting at$1395
2534
Sq Ft
1
Story
3
Bed
2.5
Bath
2
Car
View All

Other Plans By This Designer

Plan Collection
Plan Collection
Plan Collection
Plan#134-1400
Starting at$0
3929
Sq Ft
1
Story
4
Bed
3.5
Bath
3
Car
Plan Collection
Plan Collection
Plan Collection
Plan#134-1027
Starting at$0
6634
Sq Ft
2
Story
4
Bed
5.5
Bath
4
Car
Plan Collection
Plan Collection
Plan Collection
Plan#134-1355
Starting at$0
8617
Sq Ft
2
Story
5
Bed
5.5
Bath
3
Car