Estimate your costs based on your location and materials.
Yes! This plan can be customized—contact us for a free quote.
Yes! This plan can be customized—contact us for a free quote.
PLEASE NOTE: Materials Lists are based on the STOCK plan ONLY without modifications! Custom materials lists are available if you modify a plan. Please ask for a quote.
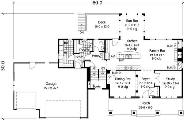
Past the inviting columns of this home's front porch, elegant spaces await to host your family's every need. The kitchen serves nearly every room in the house with its prime location next to the dining room, the family room and the sun room. The main floor also includes a smart garage entry with benches and lockers, as well as a spacious deck with stairs to the backyard. Upstairs, the vaulted master suite is accessed through double doors and framed by elegant columns; the master bath is graced by a whirlpool tub, a walk-in tiled shower, a private toilet and an enormous walk-in...
Estimate your costs based on your location and materials.
All sales of house plans, modifications, and other products found on this site are final. No refunds or exchanges can be given once your order has begun the fulfillment process. Please see our Policies for additional information.
All plans offered on ThePlanCollection.com are designed to conform to the local building codes when and where the original plan was drawn.
The homes as shown in photographs and renderings may differ from the actual blueprints. For more detailed information, please review the floor plan images herein carefully.
Estimate your costs based on your location and materials.