4-Bed, 3334 Sq Ft Luxury Cottage with Vaulted Ceilings

Luxury home (ThePlanCollection: Plan #198-1163)

Images/Plans copyrighted by designer. Photos may reflect homeowner modifications.

About House Plan #198-1163

Sq Ft
3334
Sq Ft
Bedrooms
4
Bedrooms
Bathroom
4
Baths
Half Baths
1
Half Baths
Bedrooms
2
Cars
Bedrooms
1.5
Stories
Bedrooms
74' 8'
Width
Bedrooms
83
Depth
Starting at$2495.00What's included
STEP 1Bedrooms
STEP 2Bedrooms
STEP 3Bedrooms

Subtotal:$0
Plan Collection

How much will it cost to build?

Estimate your costs based on your location and materials.

Free Cost Instant Estimator

Floor Plans

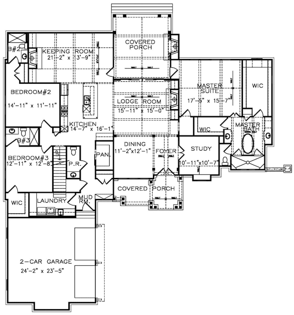
Main Level
Main Level
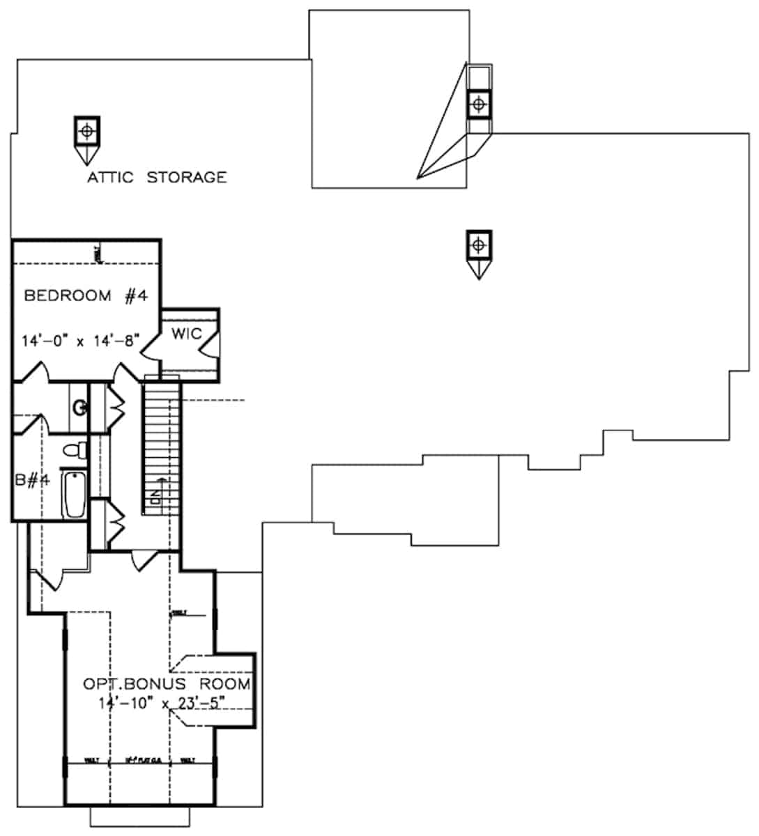
Upper Level
Upper Level
Plan Collection

Can I modify this plan?

Yes! This plan can be customized—contact us for a free quote.

Additional Notes from Designer

NO Material lists.

House Plan Description

Say yes to the luxurious lifestyle offered by this Cottage style home with a wonderful design. You’ll be amazed by the open ambiance, enhanced by the numerous windows that make the rooms throughout the house sunny and bright. The house features a covered front porch area with stately columns that is wide enough for a small sitting area or perhaps a few planters to give the front of the residence an added pleasant look. The natural stone wainscoting, gable trim, and natural-wood garage awning give the house its rustic curb...

Home Details

Summary
Plan #:198-1163
Starting at:$2495.00
Floors:1.5
Bedrooms:4
Full Baths:4
Half Baths:1
Garage:
Square Footage
Heated Area:3334 Sq. Ft.
First Floor:2851 Sq. Ft.
Second Floor:483 Sq. Ft.
Unheated Area:
Garage:608 Sq. Ft.
Dimensions
Width:74' 8''
Architectural Styles
Exterior Wall Material
Vinyl SidingRock/StoneWood Siding
Roofing Type
Gable/Dormer
Roofing Material
Asphalt Shingles
Ceiling Height
10 Foot Ceiling9 Foot Ceiling
Special Feature
FireplaceSwimming PoolDining RoomMud RoomBonus RoomFamily RoomMain Level LaundryLibraryColor PhotosSplit BathroomStorageOpen Floor PlanInterior PhotosL-Shaped
Garage Type
Attached GarageCourtyard Entry
Fireplaces
Three Fireplaces
Kitchen Features
Kitchen IslandWalk-in PantryPeninsula/Eating Bar
Porches and Exterior Features
Covered Front PorchCovered Rear Porch
Master Suite Features
Main Floor MasterMaster BathroomWalk In ClosetSplit Master Bedroom

What’s Included

Most plan sets include the following:

icon text-secondary-400 includedExterior elevations

icon text-secondary-400 includedFoundation plan

icon text-secondary-400 includedDetailed floor plans

icon text-secondary-400 includedInterior details

icon text-secondary-400 includedRoof plan

icon text-secondary-400 includedCross-section details

icon text-secondary-400 includedElectrical layout

What’s Not Included

These items are  NOT included:

icon text-secondary-400 includedArchitectural or Engineering Stamp - handled locally if required.

icon text-secondary-400 includedSite Plan - handled locally when required.

icon text-secondary-400 includedMechanical Drawings (location of heating and air equipment and ductwork) - your subcontractors handle this.

icon text-secondary-400 includedPlumbing Drawings (drawings showing the actual plumbing pipe sizes and locations) - your subcontractors handle this.

icon text-secondary-400 includedEnergy calculations - handled locally when required.

Related House Plans

Plan Collection
Plan Collection
Plan Collection
Plan#206-1028
Starting at$2395
4103
Sq Ft
1.5
Story
4
Bed
4.5
Bath
3
Car
Plan Collection
Plan Collection
Plan Collection
Plan#193-1089
Starting at$1850
3474
Sq Ft
1.5
Story
4
Bed
4
Bath
3
Car
Plan Collection
Plan Collection
Plan Collection
Plan#178-1322
Starting at$1085
2796
Sq Ft
1.5
Story
4
Bed
4
Bath
3
Car
View All

Other Plans By This Designer

Plan Collection
Plan Collection
Plan Collection
Plan#198-1053
Starting at$2195
2498
Sq Ft
1.5
Story
3
Bed
3
Bath
3
Car
Plan Collection
Plan Collection
Plan Collection
Plan#198-1054
Starting at$2630
4376
Sq Ft
2
Story
4
Bed
4.5
Bath
3
Car
Plan Collection
Plan Collection
Plan Collection
Plan#198-1060
Starting at$1985
3970
Sq Ft
2
Story
5
Bed
4.5
Bath
2
Car