4-Bedroom, 3691 Sq Ft Rustic Craftsman Plan with Main Floor Master

Rustic Craftsman style home (ThePlanCollection: Plan #202-1007)
Plan Collection View Video

Images/Plans copyrighted by designer. Photos may reflect homeowner modifications.

About House Plan #202-1007

Sq Ft
3691
Sq Ft
Bedrooms
4
Bedrooms
Bathroom
4
Baths
Half Baths
1
Half Baths
Bedrooms
3
Cars
Bedrooms
2
Stories
Bedrooms
74' 6'
Width
Bedrooms
100
Depth
Starting at$1995.00What's included
STEP 1Bedrooms
STEP 2Bedrooms
STEP 3Bedrooms

Subtotal:$0
Plan Collection

How much will it cost to build?

Estimate your costs based on your location and materials.

Free Cost Instant Estimator

Floor Plans

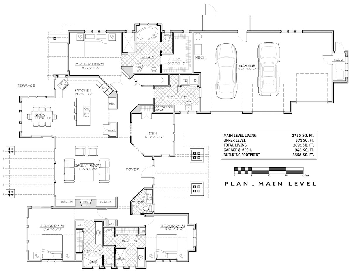
Floor Plan Main Level
Floor Plan Main Level
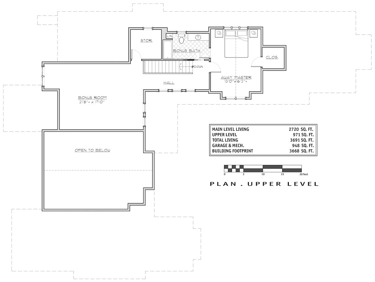
Floor Plan Upper Level
Floor Plan Upper Level
Plan Collection

Can I modify this plan?

Yes! This plan can be customized—contact us for a free quote.

Additional Notes from Designer

For a larger version of this home (with 4268 living sq ft) see Plan # 202-1006.

House Plan Description

With the vibe of a mountain lodge, this remarkable rustic Craftsman home blends in so well with its natural surroundings. The multiple rooflines, stonework detailing, timber supports, and wood siding create an enviable curb appeal. From the vaulted front porch, step into the foyer and the Great Room just beyond. The vaulted ceiling draws your attention to the windows and the view outside to the covered porch. The open-concept kitchen enjoys a large island. The dining nook is also vaulted and boasts windows on three sides. For quiet time, there is also a den. With a split bedroom...

Home Details

Summary
Plan #:202-1007
Starting at:$1995.00
Floors:2
Bedrooms:4
Full Baths:4
Half Baths:1
Garage:
Square Footage
Heated Area:3691 Sq. Ft.
First Floor:2720 Sq. Ft.
Second Floor:971 Sq. Ft.
Unheated Area:
Garage:948 Sq. Ft.
Dimensions
Width:74' 6''
Architectural Styles
Exterior Wall Material
Vinyl SidingRock/StoneWood SidingShakes
Roofing Type
Gable
Roofing Material
Asphalt ShinglesMetal
Roof Pitch
4/1210/12
Ceiling Height
9 Foot Ceiling8 Foot Ceiling
Special Feature
FireplaceGuest RoomHome OfficeMud RoomBonus RoomFamily RoomGame RoomMain Level LaundryColor PhotosColor PhotosSplit BathroomStorageDenVideoOpen Floor PlanL-Shaped
Garage Type
Attached GarageCourtyard Entry
Fireplaces
One Fireplace
Exterior Wall Framing
2x6
Kitchen Features
Kitchen IslandNook/Breakfast AreaWalk-in PantryPeninsula/Eating BarEat-In Kitchen
Porches and Exterior Features
Covered Front PorchPatio
Master Suite Features
Main Floor MasterMaster BathroomWalk In ClosetSplit Master Bedroom

What’s Included

Most plan sets include the following:

icon text-secondary-400 includedCover sheet with renderings or photos

icon text-secondary-400 includedSite plan sheet with an original site plan for reference

icon text-secondary-400 includedFloor plans

icon text-secondary-400 includedExterior elevations

icon text-secondary-400 includedSections

icon text-secondary-400 includedTypical detail sheets

icon text-secondary-400 includedStructural sheets

icon text-secondary-400 includedFoundation/floor framing

icon text-secondary-400 includedRoof framing

What’s Not Included

These items are  NOT included:

icon text-secondary-400 includedArchitectural or Engineering Stamp - handled locally if required.

icon text-secondary-400 includedSite Plan - handled locally when required.

icon text-secondary-400 includedMechanical Drawings (location of heating and air equipment and ductwork) - your subcontractors handle this.

icon text-secondary-400 includedPlumbing Drawings (drawings showing the actual plumbing pipe sizes and locations) - your subcontractors handle this.

icon text-secondary-400 includedEnergy calculations - handled locally when required.

Related House Plans

Plan Collection
Plan Collection
Plan Collection
Plan#202-1006
Starting at$1095
4268
Sq Ft
2
Story
4
Bed
4.5
Bath
3
Car
View All

Other Plans By This Designer

Plan Collection
Plan Collection
Plan Collection
Plan#202-1021
Starting at$1095
3217
Sq Ft
1.5
Story
5
Bed
3.5
Bath
2
Car
Plan Collection
Plan Collection
Plan Collection
Plan#202-1013
Starting at$995
3264
Sq Ft
1
Story
3
Bed
3.5
Bath
3
Car
Plan Collection
Plan Collection
Plan Collection
Plan#202-1017
Starting at$795
4412
Sq Ft
2
Story
5
Bed
5.5
Bath
3
Car