5-Bedroom, 5444 Sq Ft Luxury Plan with Sundeck

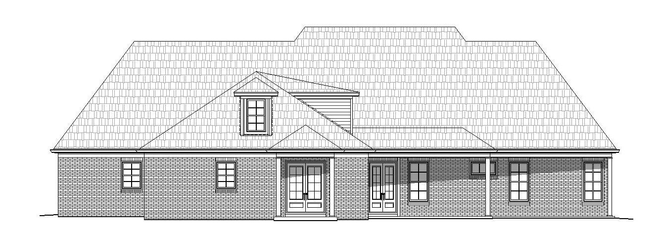
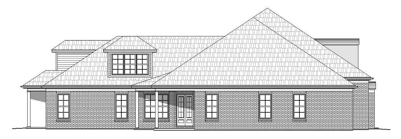
Front elevation of Luxury home (ThePlanCollection: House Plan #196-1026)

Images/Plans copyrighted by designer. Photos may reflect homeowner modifications.

About House Plan #196-1026

Sq Ft
5444
Sq Ft
Bedrooms
5
Bedrooms
Bathroom
6
Baths
Half Baths
1
Half Baths
Bedrooms
3
Cars
Bedrooms
2
Stories
Bedrooms
86' 4'
Width
Bedrooms
85
Depth
Starting at$2625.00What's included
STEP 1Bedrooms
STEP 2Bedrooms
STEP 3Bedrooms

Subtotal:$0
Plan Collection

How much will it cost to build?

Estimate your costs based on your location and materials.

Free Cost Instant Estimator

Floor Plans

Floor Plan Main Level
Floor Plan Main Level
Floor Plan Upper Level
Floor Plan Upper Level
Plan Collection

Can I modify this plan?

Yes! This plan can be customized—contact us for a free quote.

Additional Notes from Designer

NOTE FROM DESIGNER REGARDING PLAN PURCHASES: 80% of a 5 set purchase price can be applied to any PDF or CAD license upgrade. Additionally, 80% of PDF Study purchase price can be applied to any CAD or PDF license upgrade.

Please note: The total square footage for this plan is 7183.

House Plan Description

Home Details

Summary
Plan #:196-1026
Starting at:$2625.00
Floors:2
Bedrooms:5
Full Baths:6
Half Baths:1
Garage:
Square Footage
Heated Area:5444 Sq. Ft.
First Floor:3748 Sq. Ft.
Second Floor:1696 Sq. Ft.
Unheated Area:
Garage:1212 Sq. Ft.
Porch:527 Sq. Ft.
Dimensions
Width:86' 4''
Architectural Styles
Exterior Wall Material
Brick
Roofing Material
Asphalt Shingles
Roof Pitch
8/12
Ceiling Height
10 Foot Ceiling
Special Feature
FireplaceHome OfficeMain Level LaundrySplit BathroomOpen Floor Plan
Garage Type
Attached GarageSide Entry
Fireplaces
One Fireplace
Exterior Wall Framing
2x4
Kitchen Features
Kitchen IslandWalk-in PantryPeninsula/Eating Bar
Porches and Exterior Features
Covered Rear Porch
Master Suite Features
Main Floor MasterTwo or More Master SuitesMaster BathroomWalk In ClosetSplit Master Bedroom

What’s Included

Most plan sets include the following:

What’s Not Included

These items are  NOT included:

Related House Plans

Plan Collection
Plan Collection
Plan Collection
Plan#175-1073
Starting at$4500
6780
Sq Ft
2
Story
5
Bed
6.5
Bath
4
Car
Plan Collection
Plan Collection
Plan Collection
Plan#107-1192
Starting at$1800
5872
Sq Ft
2
Story
5
Bed
6
Bath
3
Car
Plan Collection
Plan Collection
Plan Collection
Plan#107-1093
Starting at$2100
5536
Sq Ft
2
Story
5
Bed
6
Bath
3
Car
View All

Other Plans By This Designer

Plan Collection
Plan Collection
Plan Collection
Plan#196-1211
Starting at$695
650
Sq Ft
2
Story
1
Bed
1
Bath
2
Car
Plan Collection
Plan Collection
Plan Collection
Plan#196-1196
Starting at$810
1500
Sq Ft
1
Story
2
Bed
2
Bath
3
Car
Plan Collection
Plan Collection
Plan Collection
Plan#196-1216
Starting at$845
1727
Sq Ft
2
Story
2
Bed
2
Bath
2
Car