5-bed, 6989 Sq Ft Spanish Plan with His & Her Walk-in Closets

Spanish style house design (ThePlanCollection: Plan #195-1289)

Images/Plans copyrighted by designer. Photos may reflect homeowner modifications.

About House Plan #195-1289

Sq Ft
6989
Sq Ft
Bedrooms
5
Bedrooms
Bathroom
5
Baths
Half Baths
2
Half Baths
Bedrooms
4
Cars
Bedrooms
1.5
Stories
Bedrooms
185' 0'
Width
Bedrooms
93
Depth
Starting at$2860.00What's included
STEP 1Bedrooms
STEP 2Bedrooms
STEP 3Bedrooms

Subtotal:$0
Plan Collection

How much will it cost to build?

Estimate your costs based on your location and materials.

Free Cost Instant Estimator

Floor Plans

Main Level
Main Level
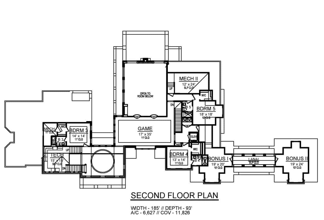
Upper Level
Upper Level
Plan Collection

Can I modify this plan?

Yes! This plan can be customized—contact us for a free quote.

Additional Notes from Designer

This designer does not offer ICF!

House Plan Description

This very impressive and highly luxurious Spanish / Mediterranean style house will be sure to grab your attention with its dynamic architectural design. The clay tile hip-style roofs and large arched windows gave the house its great curb appeal. The incredible 1.5-story home's floor plan has 6,989 square feet of heated and cooled living space with a  678-square-foot bonus room above the garage. Enjoy the great features, such as

• Fireplace in the family room and outdoor lounge
• 2 powder rooms

Home Details

Summary
Plan #:195-1289
Starting at:$2860.00
Floors:1.5
Bedrooms:5
Full Baths:5
Half Baths:2
Garage:
Square Footage
Heated Area:6989 Sq. Ft.
First Floor:4962 Sq. Ft.
Second Floor:2027 Sq. Ft.
Unheated Area:
Bonus Room:678 Sq. Ft.
Garage:1272 Sq. Ft.
Dimensions
Architectural Styles
Exterior Wall Material
BrickStucco
Roofing Type
GableHip
Roofing Material
Tiles
Roof Pitch
4/126/12
Ceiling Height
10 Foot Ceiling11 Foot Ceiling
Special Feature
FireplaceHome OfficeMud RoomBonus RoomFamily RoomGame RoomMain Level LaundryLibraryMedia RoomSplit BathroomStorageElevatorExercise RoomOpen Floor Plan
Garage Type
Attached GarageSide EntryRear Entry
Fireplaces
Two Fireplaces
Exterior Wall Framing
2x62x8
Building Lot Type
Flat SiteCorner Lot
Kitchen Features
Kitchen IslandWalk-in PantryPeninsula/Eating Bar
Porches and Exterior Features
Covered Front PorchCovered Rear PorchCovered LanaiPorte-CocherePatio
Master Suite Features
Main Floor MasterMaster BathroomWalk In ClosetSitting AreaPrivate DeckSplit Master Bedroom

What’s Included

Most plan sets include the following:

icon text-secondary-400 includedDimension Plan

icon text-secondary-400 includedNotation Plan

icon text-secondary-400 includedElectrical Layout

icon text-secondary-400 includedElevations

icon text-secondary-400 includedRoof Plan

icon text-secondary-400 includedGeneral Specifications

icon text-secondary-400 includedGeneral Details

What’s Not Included

These items are  NOT included:

icon text-secondary-400 includedArchitectural or Engineering Stamp - handled locally if required.

icon text-secondary-400 includedSite Plan - handled locally when required.

icon text-secondary-400 includedMechanical Drawings (location of heating and air equipment and ductwork) - your subcontractors handle this.

icon text-secondary-400 includedPlumbing Drawings (drawings showing the actual plumbing pipe sizes and locations) - your subcontractors handle this.

icon text-secondary-400 includedEnergy calculations - handled locally when required.

Related House Plans

Plan Collection
Plan Collection
Plan Collection
Plan#107-1028
Starting at$1800
5592
Sq Ft
1.5
Story
5
Bed
5.5
Bath
3
Car
Plan Collection
Plan Collection
Plan Collection
Plan#195-1161
Starting at$3295
6065
Sq Ft
1.5
Story
5
Bed
5.5
Bath
3
Car
Plan Collection
Plan Collection
Plan Collection
Plan#195-1301
Starting at$3295
7685
Sq Ft
1.5
Story
5
Bed
5.5
Bath
4
Car
View All

Other Plans By This Designer

Plan Collection
Plan Collection
Plan Collection
Plan#195-1216
Starting at$3295
7587
Sq Ft
2
Story
5
Bed
6.5
Bath
3
Car
Plan Collection
Plan Collection
Plan Collection
Plan#195-1307
Starting at$7995
12720
Sq Ft
2
Story
5
Bed
6.5
Bath
5
Car
Plan Collection
Plan Collection
Plan Collection
Plan#195-1127
Starting at$9995
14727
Sq Ft
2
Story
9
Bed
8.5
Bath
9
Car