Estimate your costs based on your location and materials.
Yes! This plan can be customized—contact us for a free quote.
Yes! This plan can be customized—contact us for a free quote.
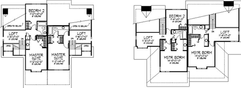
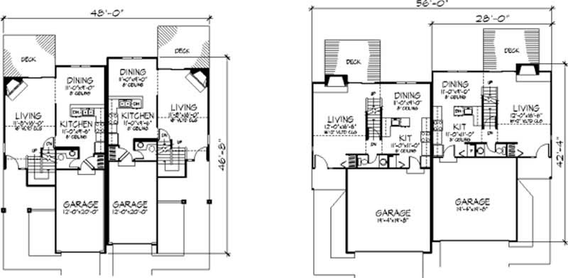
These multi-units offer four exciting floor plans in two handsome packages. Each unit features a fireplace, a deck and a soaring living room with a vaulted ceiling. Each unit also has a master bedroom with plenty of closet space. One master suite offers a private bath, the others have private vanities. Two of the units have second bedrooms; each unit features a loft that overlooks the living room.
Estimate your costs based on your location and materials.
All sales of house plans, modifications, and other products found on this site are final. No refunds or exchanges can be given once your order has begun the fulfillment process. Please see our Policies for additional information.
All plans offered on ThePlanCollection.com are designed to conform to the local building codes when and where the original plan was drawn.
The homes as shown in photographs and renderings may differ from the actual blueprints. For more detailed information, please review the floor plan images herein carefully.
Estimate your costs based on your location and materials.