2-Bedroom, 2198 Sq Ft Craftsman Plan with Kitchen Island

Main image for house plan # 20432

Images/Plans copyrighted by designer. Photos may reflect homeowner modifications.

About House Plan #161-1024

Sq Ft
2198
Sq Ft
Bedrooms
2
Bedrooms
Bathroom
1
Baths
Half Baths
0
Half Baths
Bedrooms
2
Cars
Bedrooms
1
Stories
Bedrooms
29' 0'
Width
Bedrooms
66
Depth
Starting at$1450.00What's included
STEP 1Bedrooms
STEP 2Bedrooms
STEP 3Bedrooms

Subtotal:$0
Plan Collection

How much will it cost to build?

Estimate your costs based on your location and materials.

Free Cost Instant Estimator

Floor Plans

Main Level
Main Level
Plan Collection

Can I modify this plan?

Yes! This plan can be customized—contact us for a free quote.

Additional Notes from Designer

PLEASE NOTE! This designer's plans do NOT come with framing!

House Plan Description

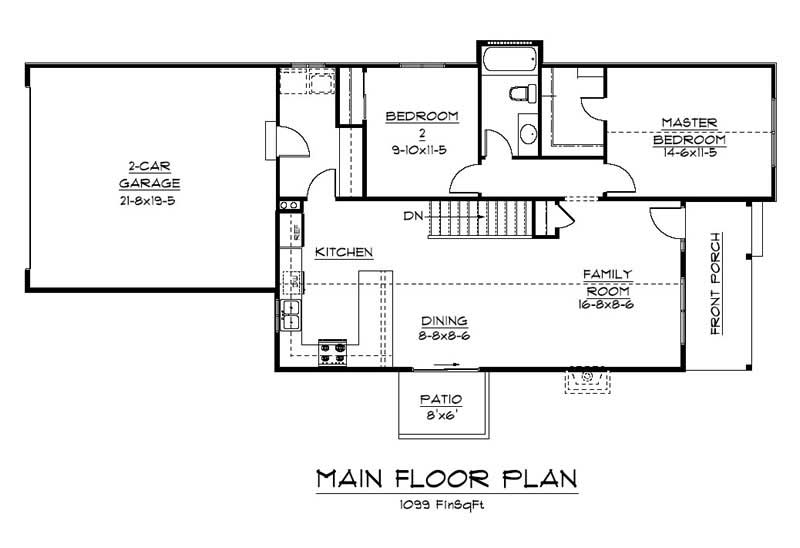
This house plan has a long family room. A dining room opened to the family, great for entertaining is also a bonus. The kitchen is also large. There is a nice patio off of the dining room. The master bedroom has a very big walk-in closet. Both bedrooms have close access to the bathroom.

Home Details

Summary
Plan #:161-1024
Starting at:$1450.00
Floors:1
Bedrooms:2
Full Baths:1
Half Baths:0
Garage:
Square Footage
Heated Area:2198 Sq. Ft.
First Floor:1099 Sq. Ft.
Unheated Area:
Basement:1099 Sq. Ft.
Garage:448 Sq. Ft.
Dimensions
Ridge Height:17-10' 0''
Architectural Styles
Exterior Wall Material
Wood Siding
Roofing Type
Gable
Roof Pitch
6/12
Ceiling Height
9 Foot Ceiling
Special Feature
Dining Room
Garage Type
Attached Garage
Fireplaces
Optional Fireplace
Exterior Wall Framing
2x4
Building Lot Type
Narrow Lot Design

What’s Included

Most plan sets include the following:

icon text-secondary-400 includedExterior elevations

icon text-secondary-400 includedMain Floor plan

icon text-secondary-400 includedArchitectural’ Foundation Plan

icon text-secondary-400 includedArchitectural’ Roof Plan

icon text-secondary-400 includedSections

icon text-secondary-400 includedMain Floor Electrical Plan

icon text-secondary-400 includedNo Framing

What’s Not Included

These items are  NOT included:

icon text-secondary-400 includedArchitectural or Engineering Stamp - handled locally if required.

icon text-secondary-400 includedSite Plan - handled locally when required.

icon text-secondary-400 includedPlumbing Drawings (drawings showing the actual plumbing pipe sizes and locations) - your subcontractors handle this.

icon text-secondary-400 includedEnergy calculations - handled locally when required.

Related House Plans

Plan Collection
Plan Collection
Plan Collection
Plan#146-2814
Starting at$980
1808
Sq Ft
1
Story
2
Bed
1.5
Bath
3
Car
Plan Collection
Plan Collection
Plan Collection
Plan#146-2785
Starting at$980
1728
Sq Ft
1
Story
2
Bed
1.5
Bath
3
Car
Plan Collection
Plan Collection
Plan Collection
Plan#157-1231
Starting at$970
1879
Sq Ft
1
Story
2
Bed
1
Bath
1
Car
View All

Other Plans By This Designer

Plan Collection
Plan Collection
Plan Collection
Plan#161-1145
Starting at$2650
3907
Sq Ft
2
Story
4
Bed
3.5
Bath
3
Car
Plan Collection
Plan Collection
Plan Collection
Plan#161-1077
Starting at$4500
6563
Sq Ft
2
Story
5
Bed
5.5
Bath
5
Car
Plan Collection
Plan Collection
Plan Collection
Plan#161-1084
Starting at$4200
5170
Sq Ft
2
Story
5
Bed
5.5
Bath
3
Car