5-Bedroom, 7115 Sq Ft Luxury Plan with Walk In Closet

House Plan #161-1054 front photo

Images/Plans copyrighted by designer. Photos may reflect homeowner modifications.

About House Plan #161-1054

Sq Ft
7115
Sq Ft
Bedrooms
5
Bedrooms
Bathroom
5
Baths
Half Baths
3
Half Baths
Bedrooms
4
Cars
Bedrooms
2
Stories
Bedrooms
103' 0'
Width
Bedrooms
77
Depth
Starting at$3850.00What's included
STEP 1Bedrooms
STEP 2Bedrooms
STEP 3Bedrooms

Subtotal:$0
Plan Collection

How much will it cost to build?

Estimate your costs based on your location and materials.

Free Cost Instant Estimator

Floor Plans

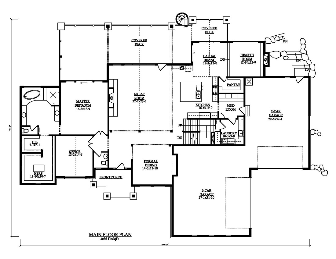
Floor Plan Main Level
Floor Plan Main Level
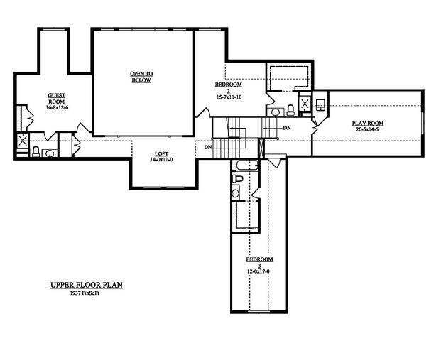
Floor Plan Upper Level
Floor Plan Upper Level
Floor Plan Basement
Floor Plan Basement
Plan Collection

Can I modify this plan?

Yes! This plan can be customized—contact us for a free quote.

Additional Notes from Designer

PLEASE NOTE! This designer's plans do NOT come with framing!

House Plan Description

This is a stunning luxury Country style house plan with many great features. The 4 car garage offers plenty of space. The five bedroom and 5 full baths provides a lot of privacy for larger families.

Home Details

Summary
Plan #:161-1054
Starting at:$3850.00
Floors:2
Bedrooms:5
Full Baths:5
Half Baths:3
Garage:
Square Footage
Heated Area:7115 Sq. Ft.
Basement:2207 Sq. Ft.
First Floor:3036 Sq. Ft.
Second Floor:1872 Sq. Ft.
Unheated Area:
Basement:829 Sq. Ft.
Garage:1624 Sq. Ft.
Porch:975 Sq. Ft.
Dimensions
Depth:77' 6''
Ridge Height:25' 0''
Architectural Styles
Exterior Wall Material
Wood Siding
Roofing Type
Gable
Roofing Material
Asphalt Shingles
Roof Pitch
7/128/12
Ceiling Height
9 Foot Ceiling
Special Feature
FireplaceDining RoomGuest RoomHome OfficeMud RoomFamily RoomMain Level LaundryColor PhotosSplit BathroomDenOpen Floor PlanInterior Photos
Garage Type
Attached GarageSide EntryFront Entry
Fireplaces
Two Fireplaces
Exterior Wall Framing
2x6
Building Lot Type
Flat SiteCorner Lot
Kitchen Features
Kitchen IslandNook/Breakfast AreaWalk-in PantryEat-In Kitchen
Porches and Exterior Features
Covered Front PorchCovered Rear Porch
Master Suite Features
Main Floor MasterMaster BathroomWalk In ClosetSplit Master Bedroom

What’s Included

Most plan sets include the following:

icon text-secondary-400 includedExterior elevations

icon text-secondary-400 includedMain Floor plan

icon text-secondary-400 includedArchitectural’ Foundation Plan

icon text-secondary-400 includedArchitectural’ Roof Plan

icon text-secondary-400 includedSections

icon text-secondary-400 includedMain Floor Electrical Plan

icon text-secondary-400 includedNo Framing

What’s Not Included

These items are  NOT included:

icon text-secondary-400 includedArchitectural or Engineering Stamp - handled locally if required.

icon text-secondary-400 includedSite Plan - handled locally when required.

icon text-secondary-400 includedPlumbing Drawings (drawings showing the actual plumbing pipe sizes and locations) - your subcontractors handle this.

icon text-secondary-400 includedEnergy calculations - handled locally when required.

Related House Plans

Plan Collection
Plan Collection
Plan Collection
Plan#161-1077
Starting at$4500
6563
Sq Ft
2
Story
5
Bed
5.5
Bath
5
Car
Plan Collection
Plan Collection
Plan Collection
Plan#161-1048
Starting at$2950
6495
Sq Ft
2
Story
5
Bed
5.5
Bath
3
Car
Plan Collection
Plan Collection
Plan Collection
Plan#161-1028
Starting at$3850
6963
Sq Ft
2
Story
5
Bed
5.5
Bath
4
Car
View All

Other Plans By This Designer

Plan Collection
Plan Collection
Plan Collection
Plan#161-1145
Starting at$2650
3907
Sq Ft
2
Story
4
Bed
3.5
Bath
3
Car
Plan Collection
Plan Collection
Plan Collection
Plan#161-1077
Starting at$4500
6563
Sq Ft
2
Story
5
Bed
5.5
Bath
5
Car
Plan Collection
Plan Collection
Plan Collection
Plan#161-1084
Starting at$4200
5170
Sq Ft
2
Story
5
Bed
5.5
Bath
3
Car