2–4-Bedroom, 2788 Sq Ft Ranch Plan with Split Master Bedroom

Ranch home (ThePlanCollection: Plan #161-1133)

Images/Plans copyrighted by designer. Photos may reflect homeowner modifications.

About House Plan #161-1133

Sq Ft
2788
Sq Ft
Bedrooms
2
Bedrooms
Bathroom
2
Baths
Half Baths
1
Half Baths
Bedrooms
4
Cars
Bedrooms
1
Stories
Bedrooms
97' 0'
Width
Bedrooms
88
Depth
Starting at$1950.00What's included
STEP 1Bedrooms
STEP 2Bedrooms
STEP 3Bedrooms

Subtotal:$0
Plan Collection

How much will it cost to build?

Estimate your costs based on your location and materials.

Free Cost Instant Estimator

Floor Plans

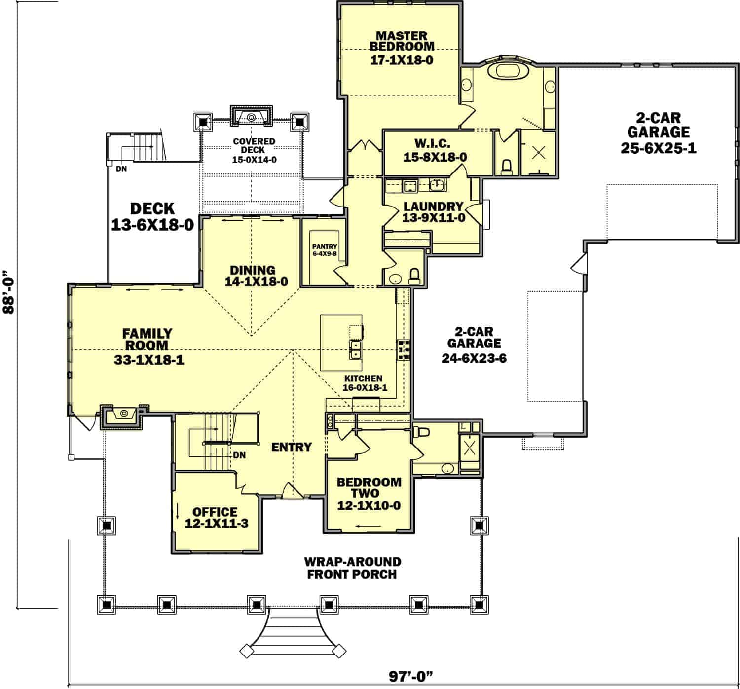
Floor Plan First Story
Floor Plan First Story
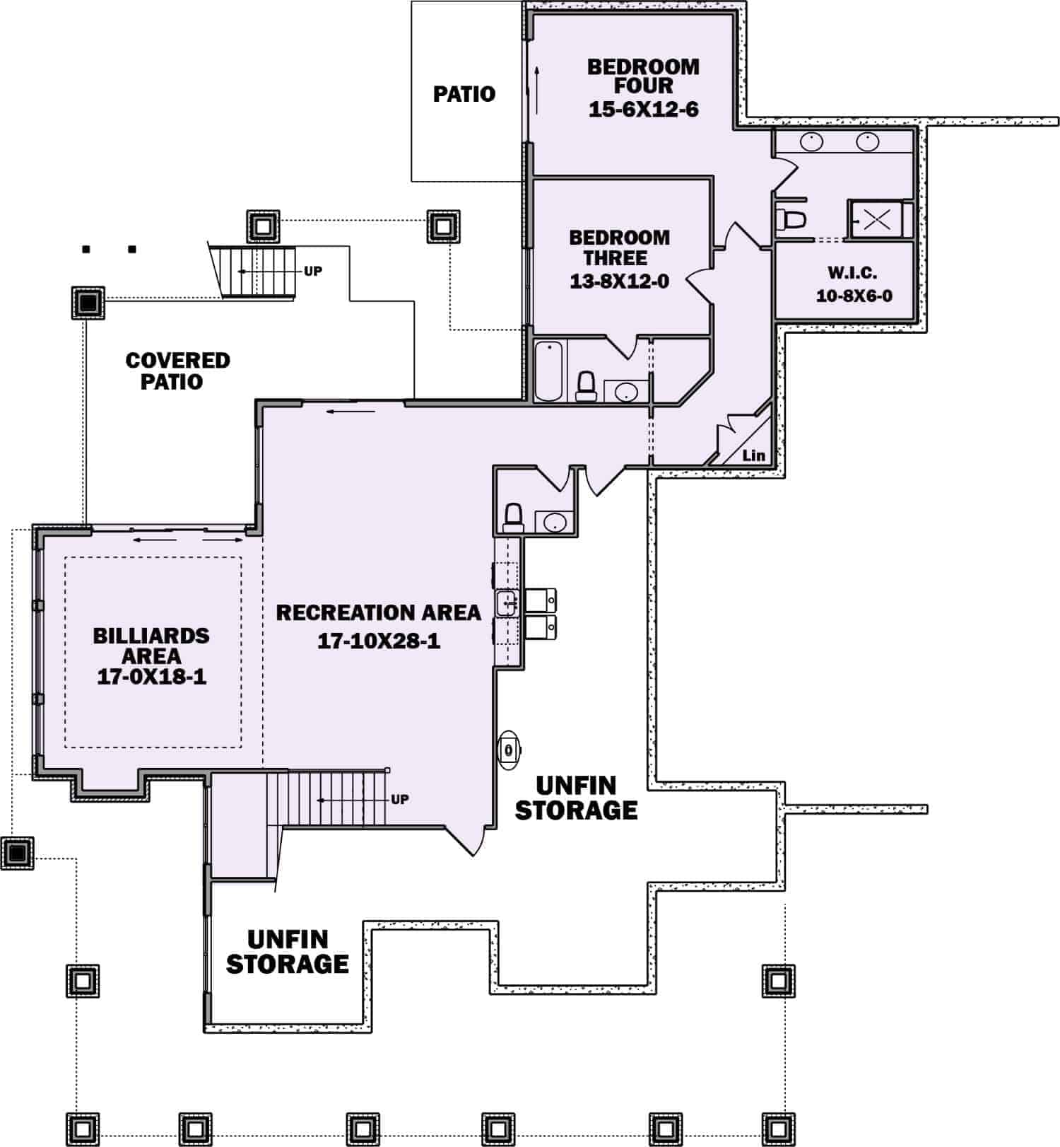
Lower Level
Lower Level
Plan Collection

Can I modify this plan?

Yes! This plan can be customized—contact us for a free quote.

Additional Notes from Designer

PLEASE NOTE! This designer's plans do NOT come with framing!

House Plan Description

This thoughtfully designed Ranch style house is for someone looking for a wide-open, extra-wide living area and magnificent space found on the porches. The beautiful 1-story floor plan has 2788 square feet of heated-cooled living space with an oversize 1426-square-foot 4-car garage that has plenty of space for a workshop and/or workbench as desired by the owner. The basement, if finished according to the suggested floor plan, would add 2788 square feet, including 2 extra bedrooms, 2 extra full bathrooms, and 1 extra half bath.

Home Details

Summary
Plan #:161-1133
Starting at:$1950.00
Floors:1
Bedrooms:2
Full Baths:2
Half Baths:1
Garage:
Square Footage
Heated Area:2788 Sq. Ft.
First Floor:2788 Sq. Ft.
Unheated Area:
Basement:2788 Sq. Ft.
Garage:1426 Sq. Ft.
Porch:1905 Sq. Ft.
Dimensions
Architectural Styles
Exterior Wall Material
BrickRock/StoneShakes
Roofing Type
GableHipDutch Gable
Roofing Material
Asphalt Shingles
Roof Pitch
3/129/12
Ceiling Height
10 Foot Ceiling
Special Feature
FireplaceHome OfficeMud RoomFamily RoomMain Level LaundrySplit BathroomStorageOpen Floor Plan
Garage Type
Attached GarageSide EntryFront Entry
Fireplaces
Two Fireplaces
Exterior Wall Framing
2x6
Building Lot Type
Corner Lot
Kitchen Features
Kitchen IslandWalk-in PantryPeninsula/Eating Bar
Porches and Exterior Features
Wrap Around PorchCovered Rear PorchSundeck
Master Suite Features
Main Floor MasterMaster BathroomWalk In ClosetSplit Master Bedroom

What’s Included

Most plan sets include the following:

icon text-secondary-400 includedExterior elevations

icon text-secondary-400 includedMain Floor plan

icon text-secondary-400 includedArchitectural’ Foundation Plan

icon text-secondary-400 includedArchitectural’ Roof Plan

icon text-secondary-400 includedSections

icon text-secondary-400 includedMain Floor Electrical Plan

icon text-secondary-400 includedNo Framing

What’s Not Included

These items are  NOT included:

icon text-secondary-400 includedArchitectural or Engineering Stamp - handled locally if required.

icon text-secondary-400 includedSite Plan - handled locally when required.

icon text-secondary-400 includedPlumbing Drawings (drawings showing the actual plumbing pipe sizes and locations) - your subcontractors handle this.

icon text-secondary-400 includedEnergy calculations - handled locally when required.

Related House Plans

Plan Collection
Plan Collection
Plan Collection
Plan#194-1010
Starting at$1395
2605
Sq Ft
1
Story
2
Bed
2.5
Bath
3
Car
Plan Collection
Plan Collection
Plan Collection
Plan#161-1085
Starting at$1750
2593
Sq Ft
1
Story
2
Bed
2.5
Bath
3
Car
Plan Collection
Plan Collection
Plan Collection
Plan#161-1042
Starting at$2200
3321
Sq Ft
1
Story
2
Bed
2.5
Bath
3
Car
View All

Other Plans By This Designer

Plan Collection
Plan Collection
Plan Collection
Plan#161-1145
Starting at$2650
3907
Sq Ft
2
Story
4
Bed
3.5
Bath
3
Car
Plan Collection
Plan Collection
Plan Collection
Plan#161-1077
Starting at$4500
6563
Sq Ft
2
Story
5
Bed
5.5
Bath
5
Car
Plan Collection
Plan Collection
Plan Collection
Plan#161-1084
Starting at$4200
5170
Sq Ft
2
Story
5
Bed
5.5
Bath
3
Car