2-5 Bed, 2767–5026 Sq Ft Ranch Plan with Color Photos

Ranch home (ThePlanCollection: Plan #161-1154)

Images/Plans copyrighted by designer. Photos may reflect homeowner modifications.

About House Plan #161-1154

Sq Ft
2767
Sq Ft
Bedrooms
2
Bedrooms
Bathroom
2
Baths
Half Baths
1
Half Baths
Bedrooms
4
Cars
Bedrooms
1
Stories
Bedrooms
109' 9'
Width
Bedrooms
81
Depth
Starting at$1950.00What's included
STEP 1Bedrooms
STEP 2Bedrooms
STEP 3Bedrooms

Subtotal:$0
Plan Collection

How much will it cost to build?

Estimate your costs based on your location and materials.

Free Cost Instant Estimator

Floor Plans

Main Level
Main Level
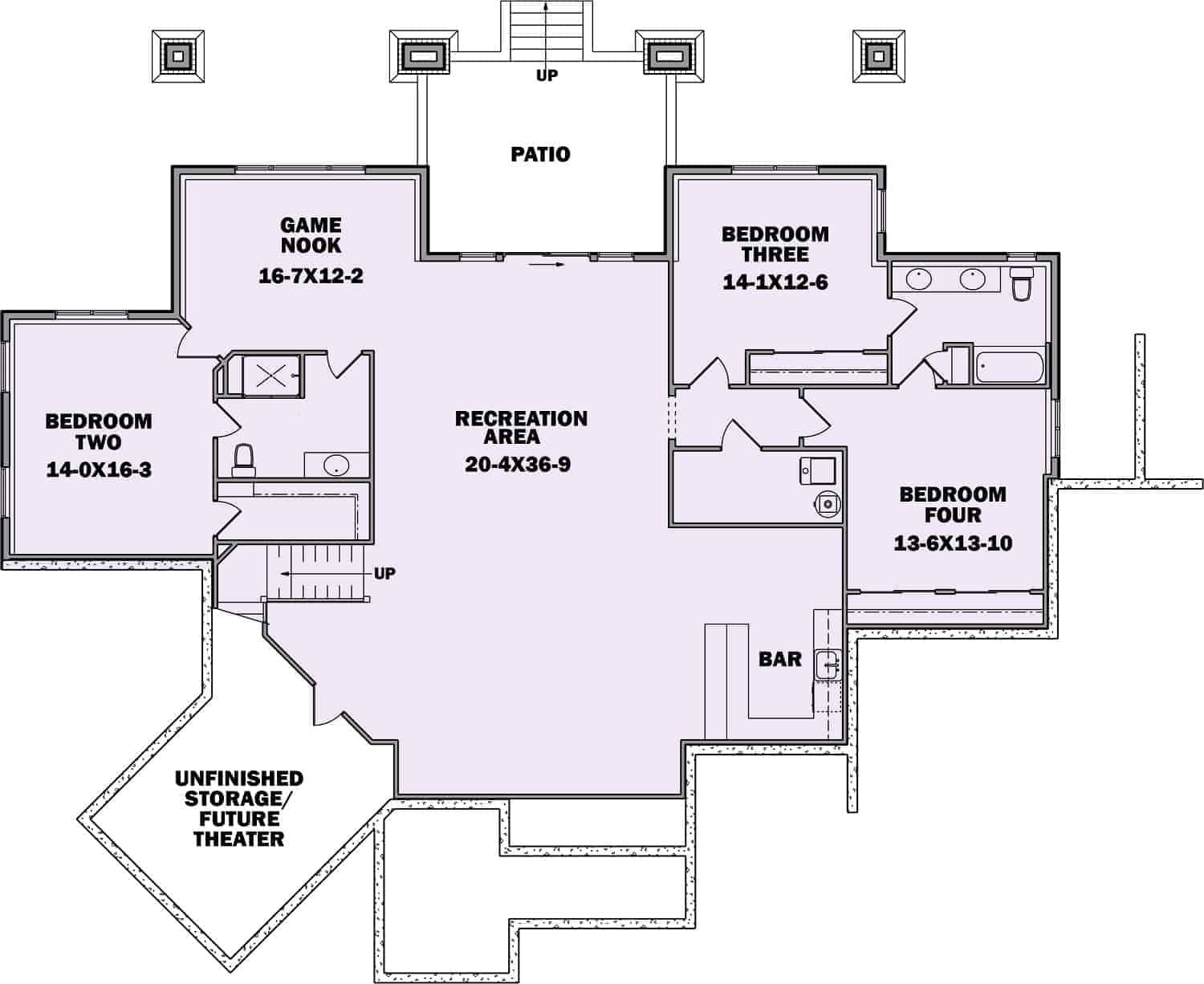
Lower Level
Lower Level
Plan Collection

Can I modify this plan?

Yes! This plan can be customized—contact us for a free quote.

Additional Notes from Designer

PLEASE NOTE! This designer's plans do NOT come with framing!

Note: The finished walkout basement adds 2259 living sq ft to the home.

House Plan Description

This Ranch style home with a Contemporary design has so much to offer – from the architectural design and gorgeous exterior to the spacious layout that's perfect for a family. The impressive 1-story home's floor plan has 2767 square feet of heated and cooled living space with a 2702-square-foot basement for future expansion at your option – with 2259 finished and 442 unfinished/storage square feet.

The lovely covered entry fronts the house as you arrive, and its main entrance will usher you to the Great Room, a gorgeous kitchen,...

Home Details

Summary
Plan #:161-1154
Starting at:$1950.00
Floors:1
Bedrooms:2
Full Baths:2
Half Baths:1
Garage:
Square Footage
Heated Area:2767 Sq. Ft.
First Floor:2767 Sq. Ft.
Unheated Area:
Basement:2702 Sq. Ft.
Garage:1626 Sq. Ft.
Porch:880 Sq. Ft.
Dimensions
Width:109' 9''
Depth:81' 6''
Architectural Styles
Exterior Wall Material
Rock/StoneWood Siding
Roofing Type
GableGable/Shed Dormer
Roofing Material
Asphalt ShinglesMetal
Roof Pitch
8/129/12
Ceiling Height
10 Foot Ceiling
Special Feature
FireplaceMud RoomFamily RoomMain Level LaundryColor PhotosSplit BathroomStorageDenOpen Floor PlanInterior PhotosL-Shaped
Garage Type
Attached GarageSide EntryFront Entry
Fireplaces
One Fireplace
Exterior Wall Framing
2x6
Building Lot Type
Corner Lot
Kitchen Features
Kitchen IslandWalk-in PantryPeninsula/Eating Bar
Porches and Exterior Features
Covered Front PorchSundeck
Master Suite Features
Main Floor MasterMaster BathroomWalk In ClosetSplit Master Bedroom

What’s Included

Most plan sets include the following:

icon text-secondary-400 includedExterior elevations

icon text-secondary-400 includedMain Floor plan

icon text-secondary-400 includedArchitectural’ Foundation Plan

icon text-secondary-400 includedArchitectural’ Roof Plan

icon text-secondary-400 includedSections

icon text-secondary-400 includedMain Floor Electrical Plan

icon text-secondary-400 includedNo Framing

What’s Not Included

These items are  NOT included:

icon text-secondary-400 includedArchitectural or Engineering Stamp - handled locally if required.

icon text-secondary-400 includedSite Plan - handled locally when required.

icon text-secondary-400 includedPlumbing Drawings (drawings showing the actual plumbing pipe sizes and locations) - your subcontractors handle this.

icon text-secondary-400 includedEnergy calculations - handled locally when required.

Related House Plans

Plan Collection
Plan Collection
Plan Collection
Plan#194-1010
Starting at$1395
2605
Sq Ft
1
Story
2
Bed
2.5
Bath
3
Car
Plan Collection
Plan Collection
Plan Collection
Plan#161-1085
Starting at$1750
2593
Sq Ft
1
Story
2
Bed
2.5
Bath
3
Car
Plan Collection
Plan Collection
Plan Collection
Plan#161-1042
Starting at$2200
3321
Sq Ft
1
Story
2
Bed
2.5
Bath
3
Car
View All

Other Plans By This Designer

Plan Collection
Plan Collection
Plan Collection
Plan#161-1145
Starting at$2650
3907
Sq Ft
2
Story
4
Bed
3.5
Bath
3
Car
Plan Collection
Plan Collection
Plan Collection
Plan#161-1077
Starting at$4500
6563
Sq Ft
2
Story
5
Bed
5.5
Bath
5
Car
Plan Collection
Plan Collection
Plan Collection
Plan#161-1084
Starting at$4200
5170
Sq Ft
2
Story
5
Bed
5.5
Bath
3
Car