1-4 Bedroom, 2987-5547 Sq Ft Contemporary Plan with Music Room

Front elevation of Contemporary home (ThePlanCollection: House Plan #161-1209)

Images/Plans copyrighted by designer. Photos may reflect homeowner modifications.

About House Plan #161-1209

Sq Ft
2987
Sq Ft
Bedrooms
1
Bedrooms
Bathroom
1
Baths
Half Baths
1
Half Baths
Bedrooms
4
Cars
Bedrooms
1
Stories
Bedrooms
98' 9'
Width
Bedrooms
117
Depth
Starting at$1950.00What's included
STEP 1Bedrooms
STEP 2Bedrooms
STEP 3Bedrooms

Subtotal:$0
Plan Collection

How much will it cost to build?

Estimate your costs based on your location and materials.

Free Cost Instant Estimator

Floor Plans

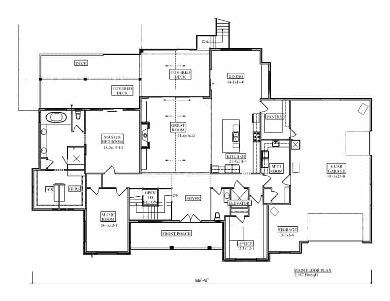
Main Level
Main Level
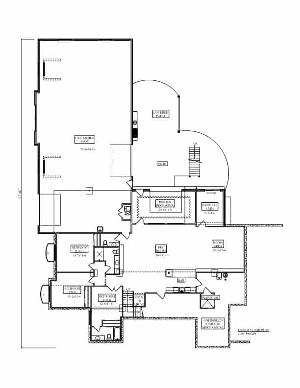
Basement Option Layout
Basement Option Layout
Plan Collection

Can I modify this plan?

Yes! This plan can be customized—contact us for a free quote.

Additional Notes from Designer

PLEASE NOTE! This designer's plans do NOT come with framing!

Note 1: The optional finished basement includes an additional 2,560 square feet, 3 more bedrooms, 2.5 more baths, and a media area.

Note 2: Alternative foundations for this plan may be available as a modification. Please complete and submit our "Modify this Plan" form to get a free quote.

Note 3: Porch sq figures may include any deck sq ft as well.

House Plan Description

This stunning ranch home boasts a Contemporary design that spans over 2,987 square feet and is complete with 1 spacious bedroom, 1.5 sleek baths, and a 4-car garage that provides ample space for all your vehicles and storage needs. The optional finished basement offers an additional 2,560 square feet of living space for those looking for even more space. It includes 3 cozy bedrooms, 2.5 stylish baths, and a media area perfect for movie nights and game days.

When you step inside, you'll be welcomed by a conveniently located mudroom that leads to a cozy home office,...

Home Details

Summary
Plan #:161-1209
Starting at:$1950.00
Floors:1
Bedrooms:1
Full Baths:1
Half Baths:1
Garage:
Square Footage
Heated Area:2987 Sq. Ft.
Basement:2560 Sq. Ft.
First Floor:2987 Sq. Ft.
Unheated Area:
Basement:3073 Sq. Ft.
Garage:1091 Sq. Ft.
Porch:2025 Sq. Ft.
Dimensions
Width:98' 9''
Depth:117' 6''
Architectural Styles
Exterior Wall Material
Vinyl SidingBrickWood Siding
Roofing Type
Gable/Dormer
Roofing Material
Asphalt ShinglesMetal
Roof Pitch
8/1210/12
Ceiling Height
10 Foot Ceiling
Special Feature
FireplaceDining RoomHome OfficeMud RoomFamily RoomMain Level LaundryColor PhotosStorageElevatorOpen Floor PlanInterior PhotosL-Shaped
Garage Type
Attached GarageSide EntryFront Entry
Fireplaces
One Fireplace
Exterior Wall Framing
2x6
Building Lot Type
Flat SiteDown SiteView Lot
Kitchen Features
Kitchen IslandWalk-in PantryEat-In Kitchen
Porches and Exterior Features
Covered Front PorchCovered Rear PorchSundeck
Master Suite Features
Main Floor MasterMaster BathroomWalk In ClosetPrivate DeckSplit Master Bedroom

What’s Included

Most plan sets include the following:

icon text-secondary-400 includedExterior elevations

icon text-secondary-400 includedMain Floor plan

icon text-secondary-400 includedArchitectural’ Foundation Plan

icon text-secondary-400 includedArchitectural’ Roof Plan

icon text-secondary-400 includedSections

icon text-secondary-400 includedMain Floor Electrical Plan

icon text-secondary-400 includedNo Framing

What’s Not Included

These items are  NOT included:

icon text-secondary-400 includedArchitectural or Engineering Stamp - handled locally if required.

icon text-secondary-400 includedSite Plan - handled locally when required.

icon text-secondary-400 includedPlumbing Drawings (drawings showing the actual plumbing pipe sizes and locations) - your subcontractors handle this.

icon text-secondary-400 includedEnergy calculations - handled locally when required.

Related House Plans

Plan Collection
Plan Collection
Plan Collection
Plan#161-1101
Starting at$1950
2815
Sq Ft
1
Story
1
Bed
1.5
Bath
3
Car
Plan Collection
Plan Collection
Plan Collection
Plan#161-1114
Starting at$1950
2725
Sq Ft
1
Story
1
Bed
1.5
Bath
4
Car
Plan Collection
Plan Collection
Plan Collection
Plan#120-2490
Starting at$1205
2796
Sq Ft
1
Story
1
Bed
1.5
Bath
3
Car
View All

Other Plans By This Designer

Plan Collection
Plan Collection
Plan Collection
Plan#161-1145
Starting at$2650
3907
Sq Ft
2
Story
4
Bed
3.5
Bath
3
Car
Plan Collection
Plan Collection
Plan Collection
Plan#161-1077
Starting at$4500
6563
Sq Ft
2
Story
5
Bed
5.5
Bath
5
Car
Plan Collection
Plan Collection
Plan Collection
Plan#161-1084
Starting at$4200
5170
Sq Ft
2
Story
5
Bed
5.5
Bath
3
Car