3-Bedroom, 2995 Sq Ft Ranch Plan with Walk In Closet

Main image for house plan # 9321

Images/Plans copyrighted by designer. Photos may reflect homeowner modifications.

About House Plan #115-1276

Sq Ft
2995
Sq Ft
Bedrooms
3
Bedrooms
Bathroom
2
Baths
Half Baths
0
Half Baths
Bedrooms
2
Cars
Bedrooms
2
Stories
Bedrooms
36' 0'
Width
Bedrooms
53
Depth
Starting at$1800.00What's included
STEP 1Bedrooms
STEP 2Bedrooms
STEP 3Bedrooms

Subtotal:$0
Plan Collection

How much will it cost to build?

Estimate your costs based on your location and materials.

Free Cost Instant Estimator

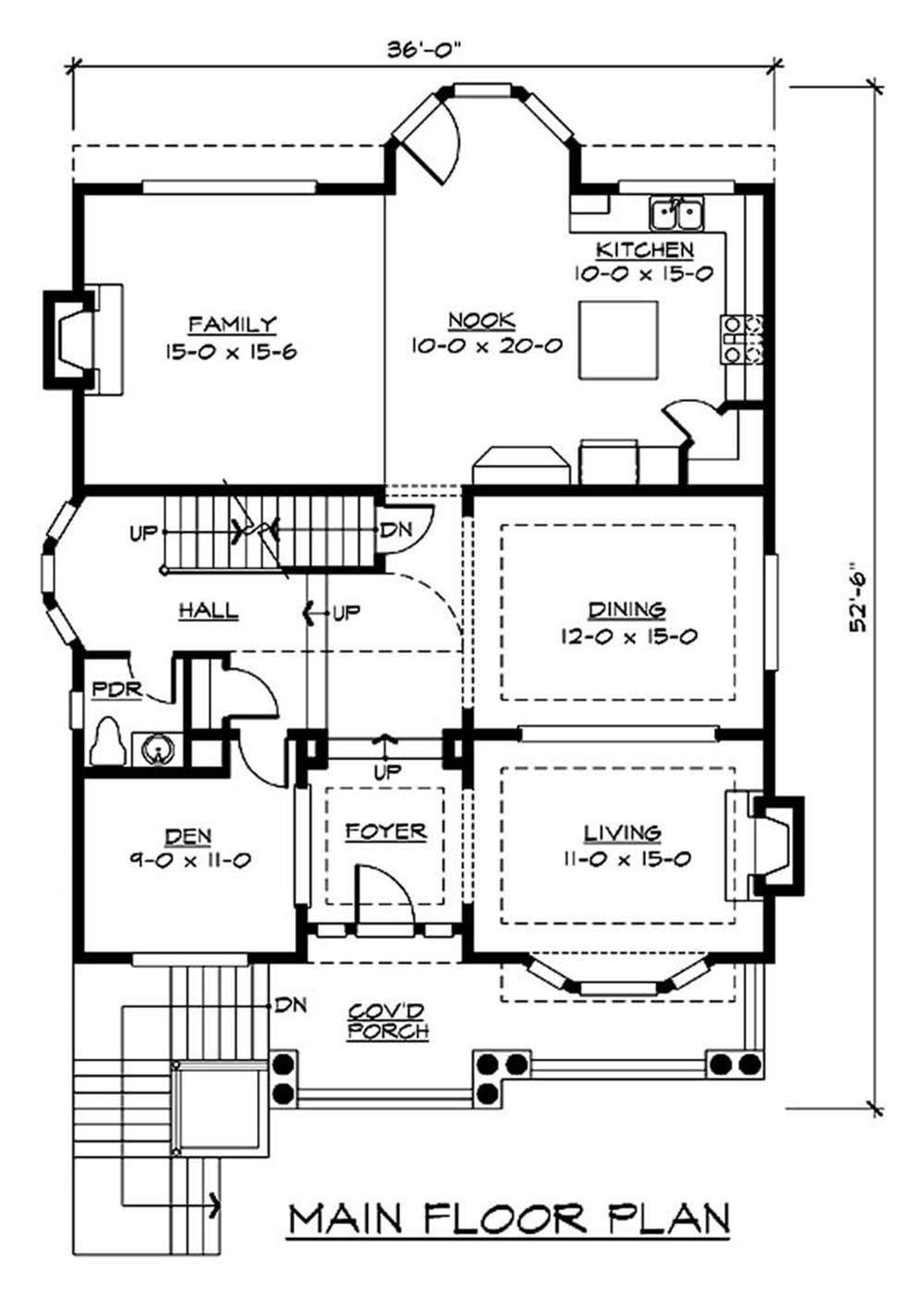
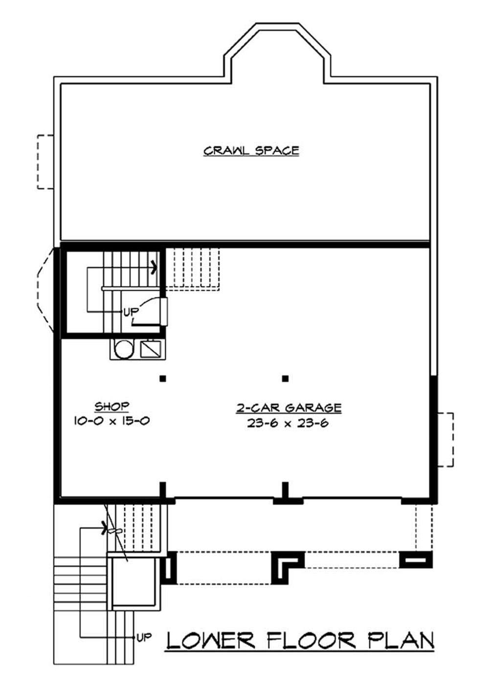
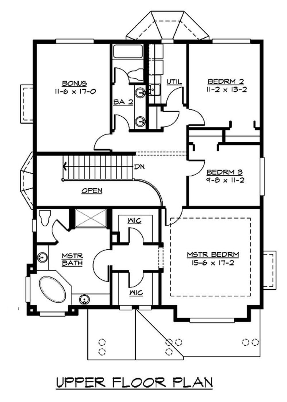
Floor Plans

Basement
Basement
First Story
First Story
Second Story
Second Story
Plan Collection

Can I modify this plan?

Yes! This plan can be customized—contact us for a free quote.

Additional Notes from Designer

Please Note: The plans by this designer DO NOT include electrical plans or electrical layout plans. NOTE: If you are building this home in Washington State, please contact us BEFORE placing your order!

House Plan Description

Not to big, not to small, and just right for the enthusiast of craftsman/shingle style homes. The two-car garage has a spacious workshop for those who love auto, wood, and other sorts of mechanical hobbies, or use it for bike and mower storage. From the foyer your guests will notice a cozy den to the left; perfect for library collections and relaxing studies or other activities. To the right, a formal living room with a classic fireplace that opens to the rear to a formal dining room. The back of the first floor plan contains a second fireplace in the great room, a nook, and a kitchen with a...

Home Details

Summary
Plan #:115-1276
Starting at:$1800.00
Floors:2
Bedrooms:3
Full Baths:2
Half Baths:0
Garage:
Square Footage
Heated Area:2995 Sq. Ft.
First Floor:1490 Sq. Ft.
Second Floor:1415 Sq. Ft.
Unheated Area:
Basement:90 Sq. Ft.
Bonus Room:195 Sq. Ft.
Garage:637 Sq. Ft.
Dimensions
Ridge Height:41'4' 0''
Architectural Styles
Roof Pitch
8/12
Ceiling Height
9 Foot Ceiling8 Foot Ceiling
Special Feature
FireplaceDining RoomGuest RoomBonus RoomLibrary
Garage Type
Attached Garage
Fireplaces
Two Fireplaces
Building Lot Type
Narrow Lot Design

What’s Included

Most plan sets include the following:

icon text-secondary-400 includedCover Sheet

icon text-secondary-400 includedSchedule Sheet

icon text-secondary-400 includedDetail Sheet

icon text-secondary-400 includedFoundation Plan Sheet

icon text-secondary-400 includedFloor Plan/Floor Framing Sheet(s)

icon text-secondary-400 includedRoof Framing Plan Sheet

icon text-secondary-400 includedElevation Sheet

icon text-secondary-400 includedBuilding Section Sheet

What’s Not Included

These items are  NOT included:

icon text-secondary-400 includedArchitectural or Engineering Stamp - handled locally if required.

icon text-secondary-400 includedSite Plan - handled locally when required.

icon text-secondary-400 includedMechanical Drawings (location of heating and air equipment and ductwork) - your subcontractors handle this.

icon text-secondary-400 includedPlumbing Drawings (drawings showing the actual plumbing pipe sizes and locations) - your subcontractors handle this.

icon text-secondary-400 includedEnergy calculations - handled locally when required.

Related House Plans

Plan Collection
Plan Collection
Plan Collection
Plan#198-1006
Starting at$2395
2587
Sq Ft
2
Story
3
Bed
2.5
Bath
3
Car
Plan Collection
Plan Collection
Plan Collection
Plan#115-1245
Starting at$1800
2805
Sq Ft
2
Story
3
Bed
2
Bath
3
Car
Plan Collection
Plan Collection
Plan Collection
Plan#117-1114
Starting at$1095
2487
Sq Ft
2
Story
3
Bed
2.5
Bath
3
Car
View All

Other Plans By This Designer

Plan Collection
Plan Collection
Plan Collection
Plan#115-1370
Starting at$1400
1000
Sq Ft
2
Story
2
Bed
2
Bath
0
Car
Plan Collection
Plan Collection
Plan Collection
Plan#115-1150
Starting at$1600
2025
Sq Ft
2
Story
3
Bed
2.5
Bath
3
Car
Plan Collection
Plan Collection
Plan Collection
Plan#115-1371
Starting at$1400
1000
Sq Ft
2
Story
2
Bed
2
Bath
0
Car