3-Bedroom, 5935 Sq Ft Transitional Plan with Color Photos

Transitional Farmhouse style home (ThePlanCollection: Plan #161-1116)

Images/Plans copyrighted by designer. Photos may reflect homeowner modifications.

About House Plan #161-1116

Sq Ft
5935
Sq Ft
Bedrooms
3
Bedrooms
Bathroom
3
Baths
Half Baths
1
Half Baths
Bedrooms
4
Cars
Bedrooms
1.5
Stories
Bedrooms
116' 0'
Width
Bedrooms
131
Depth
Starting at$4200.00What's included
STEP 1Bedrooms
STEP 2Bedrooms
STEP 3Bedrooms

Subtotal:$0
Plan Collection

How much will it cost to build?

Estimate your costs based on your location and materials.

Free Cost Instant Estimator

Floor Plans

Floor Plan Main Level
Floor Plan Main Level
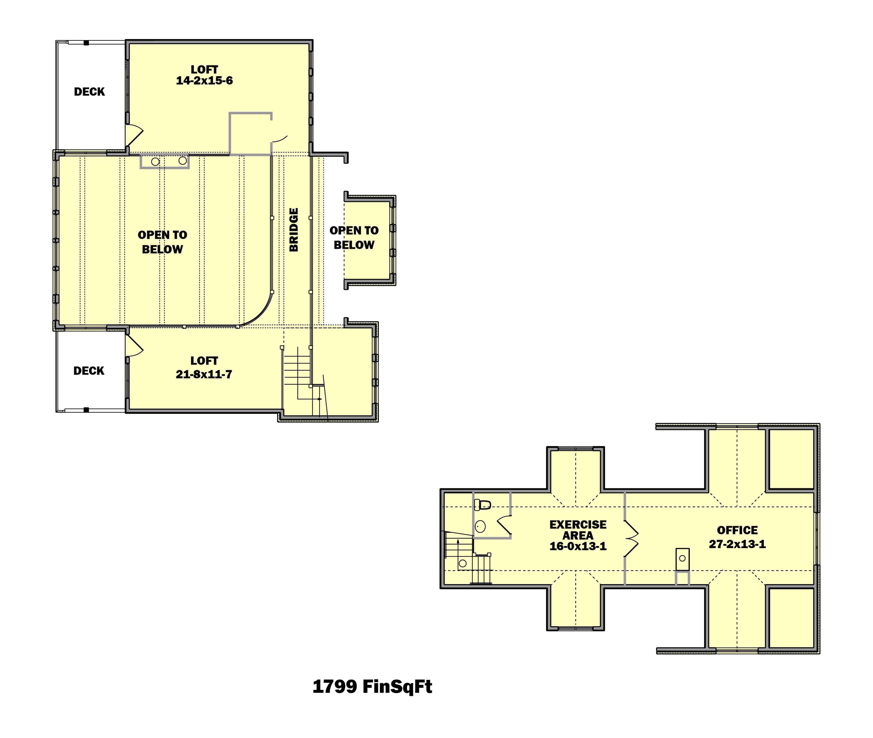
Floor Plan Upper Level
Floor Plan Upper Level
Floor Plan Basement
Floor Plan Basement
Plan Collection

Can I modify this plan?

Yes! This plan can be customized—contact us for a free quote.

Additional Notes from Designer

PLEASE NOTE! This designer's plans do NOT come with framing!

House Plan Description

This Farmhouse-Transitional home is so dynamic and vibrant in design both on its exterior as well as in the interior spaces. The house has a heated-cooled area of 5,935 square feet in both the main and upper-level areas and has an optional heated-cooled area of 4,842 square feet in the lower level, which is not included in the finished square footage of the house, with a 700-square-foot unfinished section of the basement for storage. The interplay of roof levels, room protrusions, and material combinations gave this house its great curb appeal.

The...

Home Details

Summary
Plan #:161-1116
Starting at:$4200.00
Floors:1.5
Bedrooms:3
Full Baths:3
Half Baths:1
Garage:
Square Footage
Heated Area:5935 Sq. Ft.
First Floor:4136 Sq. Ft.
Second Floor:1799 Sq. Ft.
Unheated Area:
Basement:5542 Sq. Ft.
Garage:1552 Sq. Ft.
Porch:1730 Sq. Ft.
Dimensions
Depth:131' 6''
Architectural Styles
Exterior Wall Material
Vinyl SidingRock/StoneWood Siding
Roofing Type
Gable
Roofing Material
Asphalt ShinglesOther Composites
Roof Pitch
5/128/12
Ceiling Height
10 Foot Ceiling9 Foot Ceiling12 Foot Ceiling
Special Feature
FireplaceHome OfficeMud RoomFamily RoomMain Level LaundryColor PhotosLoftSplit BathroomStorageExercise RoomOpen Floor Plan
Garage Type
Attached GarageCourtyard Entry
Fireplaces
Four Fireplaces
Exterior Wall Framing
2x6
Kitchen Features
Kitchen IslandWalk-in PantryPeninsula/Eating Bar
Porches and Exterior Features
Covered Front PorchSundeck
Master Suite Features
Main Floor MasterFireplace in MasterMaster BathroomWalk In ClosetSitting Area

What’s Included

Most plan sets include the following:

icon text-secondary-400 includedExterior elevations

icon text-secondary-400 includedMain Floor plan

icon text-secondary-400 includedArchitectural’ Foundation Plan

icon text-secondary-400 includedArchitectural’ Roof Plan

icon text-secondary-400 includedSections

icon text-secondary-400 includedMain Floor Electrical Plan

icon text-secondary-400 includedNo Framing

What’s Not Included

These items are  NOT included:

icon text-secondary-400 includedArchitectural or Engineering Stamp - handled locally if required.

icon text-secondary-400 includedSite Plan - handled locally when required.

icon text-secondary-400 includedPlumbing Drawings (drawings showing the actual plumbing pipe sizes and locations) - your subcontractors handle this.

icon text-secondary-400 includedEnergy calculations - handled locally when required.

Related House Plans

Plan Collection
Plan Collection
Plan Collection
Plan#161-1122
Starting at$3850
4851
Sq Ft
1.5
Story
3
Bed
3.5
Bath
3
Car
Plan Collection
Plan Collection
Plan Collection
Plan#132-1569
Starting at$1760
5316
Sq Ft
1.5
Story
3
Bed
3.5
Bath
3
Car
View All

Other Plans By This Designer

Plan Collection
Plan Collection
Plan Collection
Plan#161-1145
Starting at$2650
3907
Sq Ft
2
Story
4
Bed
3.5
Bath
3
Car
Plan Collection
Plan Collection
Plan Collection
Plan#161-1077
Starting at$4500
6563
Sq Ft
2
Story
5
Bed
5.5
Bath
5
Car
Plan Collection
Plan Collection
Plan Collection
Plan#161-1084
Starting at$4200
5170
Sq Ft
2
Story
5
Bed
5.5
Bath
3
Car