4 Bedroom, 3750 Sq Ft Modern Plan with Main Floor Master Suite

Front elevation of Modern home (ThePlanCollection: House Plan #168-1149)

Images/Plans copyrighted by designer. Photos may reflect homeowner modifications.

About House Plan #168-1149

Sq Ft
2512
Sq Ft
Bedrooms
4
Bedrooms
Bathroom
3
Baths
Half Baths
1
Half Baths
Bedrooms
3
Cars
Bedrooms
2
Stories
Bedrooms
62' 6'
Width
Bedrooms
77
Depth
Starting at$2850.00What's included
STEP 1Bedrooms
STEP 2Bedrooms
STEP 3Bedrooms

Subtotal:$0
Plan Collection

How much will it cost to build?

Estimate your costs based on your location and materials.

Free Cost Instant Estimator

Floor Plans

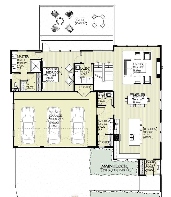
Main Level
Main Level
Upper Level
Upper Level
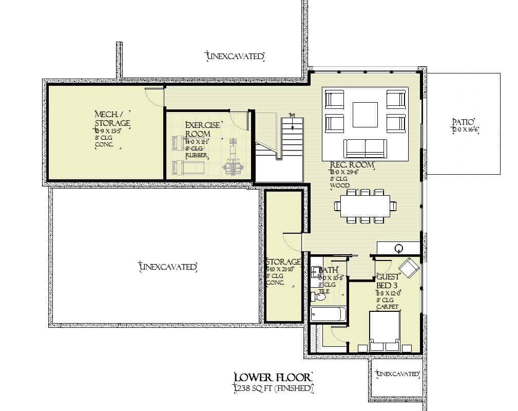
Basement Option Layout
Basement Option Layout
Plan Collection

Can I modify this plan?

Yes! This plan can be customized—contact us for a free quote.

House Plan Description

This notable Modern home with Contemporary vibe is 3750 square feet with 4 bedrooms, 3.5 baths, and a 3-car garage. Among the many features of this gallant home are:

  • Spacious Dining Area
  • Guest Bedroom
  • Jack & Jill Bathroom
  • Main Floor Master Suite with Walk-in Closet
  • Open Floor Plan

 

Home Details

Summary
Plan #:168-1149
Starting at:$2850.00
Floors:2
Bedrooms:4
Full Baths:3
Half Baths:1
Garage:
Square Footage
Heated Area:2512 Sq. Ft.
Basement:1238 Sq. Ft.
First Floor:1891 Sq. Ft.
Second Floor:621 Sq. Ft.
Unheated Area:
Dimensions
Width:62' 6''
Depth:77' 6''
Architectural Styles
Exterior Wall Material
Vinyl SidingBrickBoard and Batten
Roofing Type
Flat
Roofing Material
Asphalt Shingles
Roof Pitch
Other
Ceiling Height
9 Foot Ceiling8 Foot Ceiling
Special Feature
FireplaceGuest RoomMud RoomMain Level LaundrySplit BathroomStorageOpen Floor Plan
Garage Type
Attached GarageFront Entry
Fireplaces
One Fireplace
Exterior Wall Framing
2x6
Building Lot Type
Down SiteView Lot
Kitchen Features
Kitchen IslandEat-In Kitchen
Porches and Exterior Features
Covered Front PorchPatio
Master Suite Features
Main Floor MasterMaster BathroomWalk In ClosetSitting AreaSplit Master Bedroom

What’s Included

Most plan sets include the following:

icon text-secondary-400 includedTitle Sheet

icon text-secondary-400 includedFloor Plans

icon text-secondary-400 includedWindow & Door Sizes

icon text-secondary-400 includedExterior Elevations

icon text-secondary-400 includedBuilding and/or Wall sections

icon text-secondary-400 includedRoof plans

icon text-secondary-400 includedFoundation Plans

What’s Not Included

These items are  NOT included:

icon text-secondary-400 includedArchitectural or Engineering Stamp - handled locally if required.

icon text-secondary-400 includedSite Plan - handled locally when required.

icon text-secondary-400 includedMechanical Drawings (location of heating and air equipment and duct work) - your subcontractors handle this.

icon text-secondary-400 includedPlumbing Drawings (drawings showing the actual plumbing pipe sizes and locations) - your subcontractors handle this.

icon text-secondary-400 includedEnergy calculations - handled locally when required.

Related House Plans

Plan Collection
Plan Collection
Plan Collection
Plan#116-1078
Starting at$0
3100
Sq Ft
2
Story
4
Bed
3.5
Bath
2
Car
Plan Collection
Plan Collection
Plan Collection
Plan#168-1099
Starting at$2600
2609
Sq Ft
2
Story
4
Bed
3.5
Bath
3
Car
Plan Collection
Plan Collection
Plan Collection
Plan#168-1044
Starting at$1600
2798
Sq Ft
2
Story
4
Bed
3.5
Bath
0
Car
View All

Other Plans By This Designer

Plan Collection
Plan Collection
Plan Collection
Plan#168-1132
Starting at$3050
4580
Sq Ft
2
Story
5
Bed
5
Bath
3
Car
Plan Collection
Plan Collection
Plan Collection
Plan#168-1129
Starting at$2500
1930
Sq Ft
2
Story
3
Bed
2.5
Bath
2
Car
Plan Collection
Plan Collection
Plan Collection
Plan#168-1099
Starting at$2600
2609
Sq Ft
2
Story
4
Bed
3.5
Bath
3
Car