5-Bedroom, 3349 Sq Ft Tudor Plan with Home Office

Front elevation of Tudor home (ThePlanCollection: House Plan #168-1171)

Images/Plans copyrighted by designer. Photos may reflect homeowner modifications.

About House Plan #168-1171

Sq Ft
3349
Sq Ft
Bedrooms
5
Bedrooms
Bathroom
3
Baths
Half Baths
1
Half Baths
Bedrooms
0
Cars
Bedrooms
2
Stories
Bedrooms
44' 0'
Width
Bedrooms
42
Depth
Starting at$2600.00What's included
STEP 1Bedrooms
STEP 2Bedrooms
STEP 3Bedrooms

Subtotal:$0
Plan Collection

How much will it cost to build?

Estimate your costs based on your location and materials.

Free Cost Instant Estimator

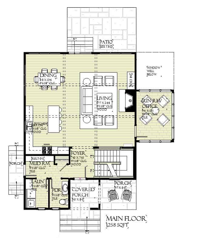
Floor Plans

Main Level
Main Level
Upper Level
Upper Level
Lower Level
Lower Level
Plan Collection

Can I modify this plan?

Yes! This plan can be customized—contact us for a free quote.

House Plan Description

This charming Tudor home with European attributes is 3,349 square feet with 5 bedrooms and 3.5 baths. Also included in this breathtaking home are the following amenities:

  • Living Room, Family Room, Game Room
  • Sunroom, Home Office
  • Master Bedroom with Walk-in Closet
  • Attic
  • Open Floor Plan

Home Details

Summary
Plan #:168-1171
Starting at:$2600.00
Floors:2
Bedrooms:5
Full Baths:3
Half Baths:1
Garage:
Square Footage
Heated Area:3349 Sq. Ft.
Basement:1055 Sq. Ft.
First Floor:1258 Sq. Ft.
Second Floor:1036 Sq. Ft.
Unheated Area:
Dimensions
Architectural Styles
Exterior Wall Material
Vinyl SidingBrickWood Siding
Roofing Type
Gable
Roofing Material
Asphalt Shingles
Roof Pitch
11/12
Ceiling Height
9 Foot Ceiling8 Foot Ceiling
Special Feature
FireplaceHome OfficeMud RoomFamily RoomGame RoomMain Level LaundryStorageOpen Floor Plan
Garage Type
Detached Garage
Fireplaces
One Fireplace
Exterior Wall Framing
2x6
Building Lot Type
Down SiteNarrow Lot Design
Kitchen Features
Kitchen IslandEat-In Kitchen
Porches and Exterior Features
Covered Front PorchScreened Porch/SunroomCovered Rear Patio
Master Suite Features
Master BathroomWalk In ClosetSecond Floor Master

What’s Included

Most plan sets include the following:

icon text-secondary-400 includedTitle Sheet

icon text-secondary-400 includedFloor Plans

icon text-secondary-400 includedWindow & Door Sizes

icon text-secondary-400 includedExterior Elevations

icon text-secondary-400 includedBuilding and/or Wall sections

icon text-secondary-400 includedRoof plans

icon text-secondary-400 includedFoundation Plans

What’s Not Included

These items are  NOT included:

icon text-secondary-400 includedArchitectural or Engineering Stamp - handled locally if required.

icon text-secondary-400 includedSite Plan - handled locally when required.

icon text-secondary-400 includedMechanical Drawings (location of heating and air equipment and duct work) - your subcontractors handle this.

icon text-secondary-400 includedPlumbing Drawings (drawings showing the actual plumbing pipe sizes and locations) - your subcontractors handle this.

icon text-secondary-400 includedEnergy calculations - handled locally when required.

Related House Plans

Plan Collection
Plan Collection
Plan Collection
Plan#165-1051
Starting at$2450
4171
Sq Ft
2
Story
5
Bed
3.5
Bath
4
Car
Plan Collection
Plan Collection
Plan Collection
Plan#189-1013
Starting at$1595
3263
Sq Ft
2
Story
5
Bed
3.5
Bath
2
Car
Plan Collection
Plan Collection
Plan Collection
Plan#153-1028
Starting at$1200
2698
Sq Ft
2
Story
5
Bed
3
Bath
2
Car
View All

Other Plans By This Designer

Plan Collection
Plan Collection
Plan Collection
Plan#168-1132
Starting at$3050
4580
Sq Ft
2
Story
5
Bed
5
Bath
3
Car
Plan Collection
Plan Collection
Plan Collection
Plan#168-1129
Starting at$2500
1930
Sq Ft
2
Story
3
Bed
2.5
Bath
2
Car
Plan Collection
Plan Collection
Plan Collection
Plan#168-1099
Starting at$2600
2609
Sq Ft
2
Story
4
Bed
3.5
Bath
3
Car